RFS Industries

Since 1921

 

Auxiliary Components

1. Magna-San Magnetic Separator

RFS Industries Aerator with magnetic separation. The Magna-San is designed to magnetically clean, aerate and cool foundry shakeout sand. This compact unit is available in portable and stationary models. The portable model, used to pile or windrow sand, can be conveniently towed between molding locations. The stationary model can be permanently installed in a system or moved by crane to positions where it is needed.

Both models have a 15 cu. ft. hopper, designed for mechanical loading, with a steel grate to remove large spills and sprues. Sand is discharged from the hopper, on a flighted conveyor, through an adjustable safety gate. A permanent-magnet head pulley on the conveyor separates ferrous scrap before the sand feeds to a "RFS Industries" aerator. This 25" wide, high- speed, cleated belt conditions up to 45 tons of sand per hour. An adjustable, steel deflector controls the angle of the discharge stream.

The Magna-San is constructed with a heavy-duty, welded box frame; fully-enclosed sealed bearings are used throughout. Each unit is tested and shipped fully assembled.

 

2. Aerators

3. Flask Fillers

RFS Industries Flask Fillers are compact, self-contained sand delivery systems designed to mechanize the filling of large flasks used in floor molding and rollover machine operations. The equipment consists of a receiving hopper and belt conveyor unit that is pivot-mounted on a swivel pedestal so that it can be manually swung both laterally and vertically. This permits the operator to rotate the conveyor unit over a wide arc and to easily raise and lower the discharge end. A swing chute at the end of the unit can also be manually controlled to move in a forward -backward motion. This three-direction action makes it possible to distribute sand to all of the

4. Shake Out

RFS Industries Beltaerators can be installed on transfer and distributing conveyors to make sand conditioning an integral part of the foundry sand handling system. For prepared sand, Beltaerators are mounted in front of molders' hoppers or automatic molding machines. Units, with or without cooling attachments, can be used for shakeout sand. Standard Beltaerator models are available for use with conveyors from 16" to 38" wide, with capacities up to 250 tph.

Inside the Beltaerator, incoming sand on the conveyor is channeled between double-lip seals into rotors mounted just above the belt. These high-speed rotors aerate and cool the sand by churning it inside the scaled housing. Live rubber impingement curtains control sand discharge at the outlet. All models have an exhaust port which may be connected to the foundry dust control system and air intake ports can provide additional air for cooling.

Beltaerators may be equipped with either cleated belt rotors or tine rotors. Cleated rotors provide better aeration in free-flowing sand; tine rotors are recommended for "stiff" sands and for sands with large lumps. All rotors have cold-rolled steel shafts and are mounted in pillow block bearings. Both cleated belts and tines are attached to the rotors with quick-disconnect clamps.

Water spray attachments can be added to Beltaerators for additional cooling of shakeout sand. The water spray nozzles are positioned just before the inlet. Using a mechanical volume-sensing device upstream of the aerating unit and thermocouples at the inlet and outlet, the controls precisely meter the required amount of water. Mechanical aeration and air flow provided by the Beltaerator improve the cooling efficiency of the water spray.

The Model BA-18 Beltaerator is a compact unit with a single drive for the two rotors. Models BS-24, BA-30 and BA-36 are larger units, assembled from modules, with separate drives for each rotor. These modules can be combined to provide the exact aeration and cooling for a specific application.

All Beltaerator models can be installed without breaking the conveyor splice. A lower frame, that includes idlers to properly position the belt, is bolted or welded to the existing conveyor frame. A separate top frame, upon which the Beltaerator housing and rotors are mounted, attaches to the lower frame.

The Aerating Gate is designed to eliminate the problem of lumps as the molding sand flows into the flask. This tine-rotor aerator mounts at the discharge of a molder's hopper and has a deflector to direct the aerated sand.

The Aerating Gate uses a series of hardened steel pins inserted in shafts which rotate at high speed. Spacing, alignment and synchronized rotation of these pins assure thorough conditioning of all the sand. The molder controls the flow of sand with one manual air value.

Aerating Gates are manufactured to fit all types of molders' hoppers by using a cut-to-fit adapter plate with one of six standard models: 14" x 14", 14" x 18", 18" x 18", 18" x 24", 24" x 30", 30" x 30". All units have an air-operated slide gate positioned between the hopper adapter and the aerating unit. A second gate, at the bottom of the aerating section, is optional.

The lower portion of the Aerating Gate is hinged to provide ready access to the rotors and drive components. All bearings are scaled and permanently lubricated. Each unit is tested and shipped assembled.

A series of stationary and portable models with capacities from 15 to 180 tph.

RFS Industries Aerators utilize the unique cleated-belt principle to clean, mix, aerate and cool foundry sand. Eleven standard models are available for a variety of applications in small- and medium-sized foundries, core rooms, side floor operations, shipboard foundries. Stationary models may be incorporated into total sand handling systems.

The model 12F is designed for hand-shovel operations. Models 16F, 25F and 36F are available with low hoppers, for continuous feeding by a belt conveyor, and with batch hoppers, for loading from a muller or with a front-end loader. The batch-hopper design has an adjustable gate to regulate the flow of sand to the cleated belt.

RFS Industries Aerators feature welded, structural-angle frames and sealed ball bearings. All units are tested and shipped assembled.

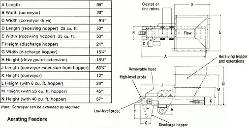
The RFS Industries Aerating Feeder is designed to provide up to 50 tph of aerated sand to automatic molding machines. The unit has a receiving hopper, an enclosed discharge conveyor with aerating rotors, and a discharge hopper which couples to the molding machine. Feeders may be mounted under a distributing conveyor in an overhead sand system, or they may be independently supported and supplied directly by a conveyor or elevator.

Two cleated-belt rotors, mounted above the discharge conveyor, aerate the sand just before it enters the molding machine. For very "stiff" sand, optional tine rotors are recommended.

Standard models of Aerating Feeders are available with capacities of 30 tph and 50 tph. Adjustable gates in the receiving hopper control the delivery rate. The flow of sand can be continuous or "on demand." Automatic operation is controlled by high- and low-level probes in the discharge hopper. Optional controls can be installed for automatic feeding to the receiving hopper.

The three standard receiving hoppers have capacities of 6 cu. ft., 25 cu. ft., and 40 cu. ft. The epoxy-coated discharge hopper is designed to fit any molding machine and has a capacity of approximately 3 1/2 cu. ft.

The Aerating Feeder is wired for a remote starter - 230V or 460V, 3-phase, 60-hertz. The conveyor drive can be reversed to purge sand through the gate in the rear of the receiving hopper. All units are tested and shipped assembled.

areas of large flasks - even the corners.

RFS Industries Flask Fillers are designed for overhead feeding. A large hopper, located on the conveyor unit above the steel pedestal, receives the sand and delivers it directly to the high-speed, endless-type conveyor belt. A remote switch, located on the swing chute at the discharge end of the unit, permits the operator to activate the electric motor that powers the conveyor belt. A steel shaft, with rubber handgrips, is attached to the sand discharge chute so that the operator can easily swing the unit to various positions. Laterally, the unit swings over an arc of 180°; vertically, it will rise to a height four feet above the floor and lower to a position of less than two feet above the floor.

RFS Industries Flask Fillers are manufactured in two sizes and capacities. Model MF-15 is equipped with a 12" wide rubber belt that travels at a speed of 146 FPM and has a capacity of 15 tons-per-hour. Model MF-30 has an 18" wide belt, a speed of 195 feet-per-minute, and a capacity of 30 tons-per-hour.

Standard models of RFS Industries equipment are available for direct feeding of these units. Feeder Bins can be installed to discharge a controlled flow of sand directly to the receiving hopper of the Flask Filler. These bins, available in capacities of 30, 50 and 80 cubic feet, include a motorized conveyor that can be synchronized with the drive of the Flask Filler.

RFS Industries Overhead Sand Systems - single, twin or multi-hopper- are also convenient for delivering sand to these units. Overhead hoppers can be equipped with bin level controls that automatically keep the Flask Filler hopper filled.

5. Vibratory Conveyors